301 200 €
Disponible à la vente
OBERHERGHEIM
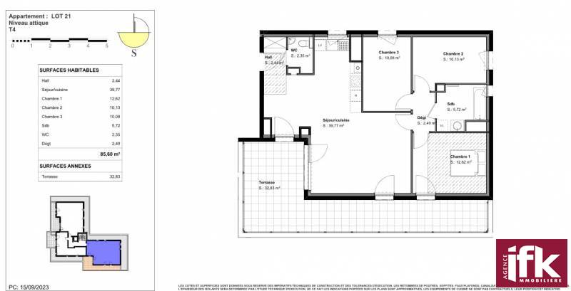
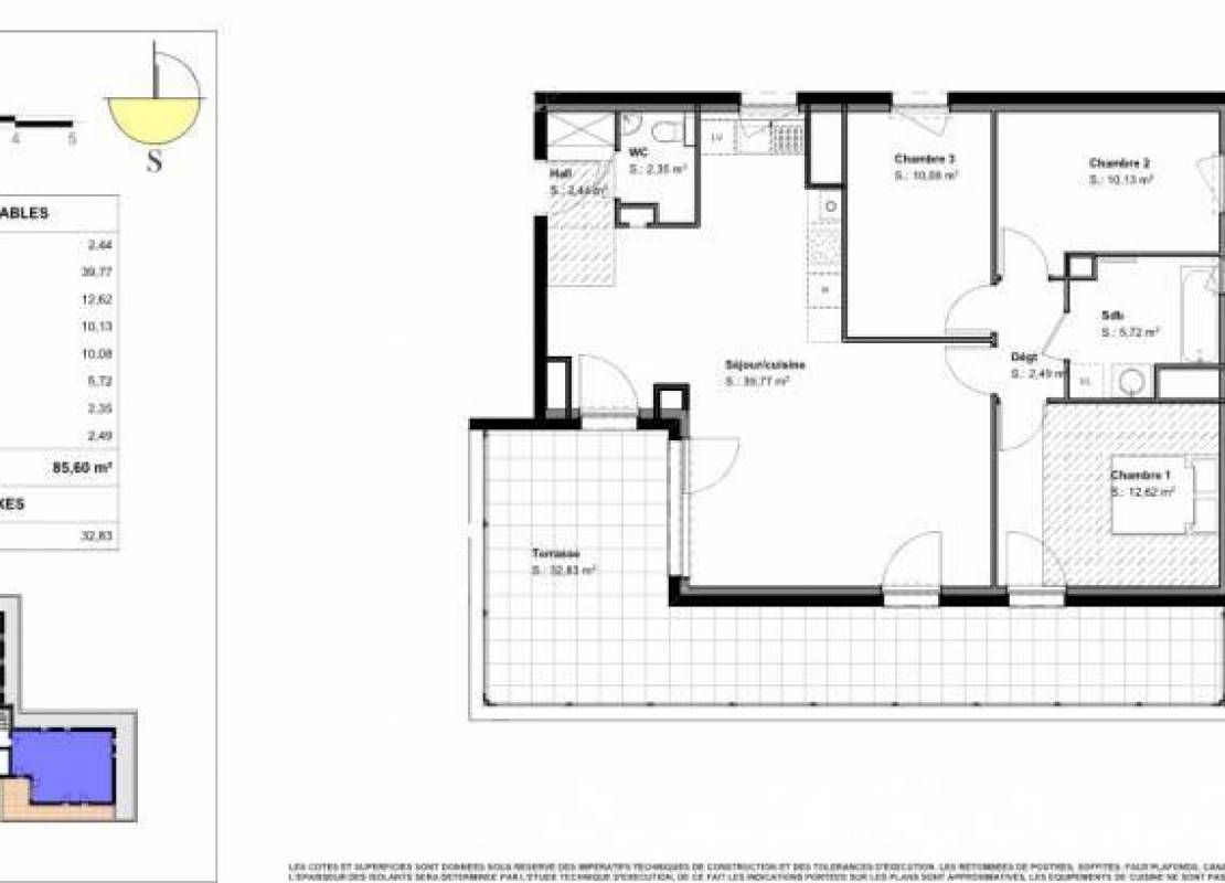
Descriptif: OBERHERGHEIM : Dans une résidence de 15 logements avec ascenseur, nous vendons un appartement F4 de 85m2 au dernier étage avec une terrasse de 32m2.
Appartements accessibles PMR (Personne à mobilité réduite).
Très belles prestations :
• Grands jardins/terrasses
• Garages en sous-sol
• Ascenseur
• Normes PMR
• Chauffage individuel
• Salle de bain avec douche Italienne ou baignoire au choix
• Réglementation RT 2012, économies d’énergie, isolation renforcée
• Portes palières sécurisées
• Choix des matériaux de finition (carrelage – faïences – parquet –peinture)
• Local Vélos
A 13 minutes de Colmar, proximité immédiate de l’autoroute, frontière Allemande à 20 minutes, frontière Suisse à 35 minutes.
OBERHERGHEIM : Boulangerie – Boucherie – Coiffeur - Pharmacie – Tabac – Banque ….--
Prix de vente appartement : 301 200€
D’autres logements du T2 au T4 disponibles…
Possibilité suivant conditions de bénéficier du dispositif Location Accession avec Une TVA réduite à 5.5% au lieu de 20% et une exonération de la taxe foncière pendant 15 ans.
Prix de vente du garage : 15 000€
Garantie financière d’achèvement.
Assurance dommage ouvrage.
Honoraires d’agence charge vendeur.
Agence IFK :
2 agences à votre service :
HORBOURG-WIHR : 75 Grand rue
FORTSCHWIHR : 22D route de Colmar
** ESTIMATION – TRANSACTIONS – LOCATIONS – CONSEILS **
L’Agence IFK propose une estimation gratuite de votre bien immobilier
Les informations sur les risques auxquels ce bien est exposé sont disponibles sur le site Géorisques : www.georisques.gouv.fr


Date de réalisation du DPE : 28/11/2024
Prix moyens des énergies indexés au 28/11/2024 (abonnements compris)
Agent